好房網News記者林清坤/綜合報導
男女對於屋內的格局、裝潢的風格,喜好、顧慮也不盡相同,因此夫妻買房一定要好好溝通,找出最完美的平衡點,保持同理心,才不會造成家庭革命。
一位網友在PTT《home-sale》版上發文,他表示與妻子尚無孩子,2人前陣子購入預售屋,室內不含陽台空間約22坪,現只有他和妻子2人要入住,未來將考慮生2個孩子,並在文中附上建商給的格局圖。
原PO發出建商給的格局圖。圖/翻攝自PTT《home-sale》

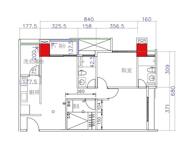
原PO認為按照建商給的格局空間已經較狹窄了,但這時妻子竟又提出想在大門進來的空間再隔一間房,方便將來生孩子後好做空間利用,令他相當苦惱,他其實並不介意用暗門設計,但深怕入住後一進門就感覺到空間狹窄的壓迫感,因而與老婆意見分歧,相當頭痛,於是他附上老婆客變後的格局圖,詢問大家意見,哪個格局較佳?
原PO妻子建議在原本的格局多隔一間房。圖/翻攝自PTT《home-sale》

貼文一出,大多網友贊同原PO想法,認為等到孩子出生再做隔間也不遲,現在做了意義不大,反而壓縮了夫妻的生活空間,但還是建議原PO「老婆為大」,聽從太座的想法,「聽老婆的家庭才會和諧,才有人幫你生兩個,雖然那個房間一點意義都沒有」、「空間小,弄不出什麼花樣的,但奉勸你聽太座的,然後自己努力賺錢等換房才是真的」、「太座安的好,生活沒煩惱」、「聽老婆的話,隔起來,生兩個以後再說,可以當書房、儲藏更衣室」。
有網友則擔憂22坪的空間根本無法容納4個人,若真的想規劃出將來4個人生活的環境,最好方法應該是將上面房間改成主臥室,讓下面的房間和隔間空間平均一些,轉變成3房房型,「上面做主臥,下面和廁所對齊、原本主臥縮小,這樣三間大小平均,未來生兩個會比較好利用」、「主臥牆退縮一點,留60-65公分當衣櫃就好,這樣進門空間可以加大一些」。

