東森新聞
一名裝潢新手Darren表示,學生時期在台中生活了四年,深深被這城市吸引,總是幻想著能擁有一間台中的房,2021年,房價依舊在飆漲,政府通過房地合一2.0,許多投資客避免被課重稅紛紛降價賣屋,又遇到新冠肺炎爆發,雖然疫情期間不該亂跑,但為了口袋裡辛苦賺來的錢,只好這時間出去看房,期待能殺個好價格。並指出跟著房仲看了好幾間房,因為疫情期間許多社區都禁止看房,房仲還是幫忙處理實在是很感謝,最終也買到心目中喜歡的房子。
【房屋基本資料】
●地點:台中市西屯區
●權狀:53坪
●格局:2房1廳2衛2陽台
●施作面積:20坪(只施作公共領域+主臥室)
【尋找設計師】
(圖/Darren提供)

Darren透露,買完房後沒有就此閒著,而是不斷穿梭在,各種裝潢討論留言板中,尋找自己心儀的設計風格,進而發現簡單顏色的搭配風格,是自己想要的,並陸續找了5組設計師來協助規劃。
起初第一組設計師:丈量完後訊息不讀不回,不知道是否因為預算的問題,當天過來丈量完後,就說老闆要去露營,後續就沒有回應了。
第二組設計師:2位年輕男生,是家人幫忙介紹的,在丈量完事隔幾日,就有效率的傳渲染圖過來,並指出能這樣設計規劃,但因為美感遇自己不符,就為婉拒絕了。
第三組設計師:是統包師傅,他說常常幫豪宅做室內規劃,也有帶我們去參考以前的作品,跟前客戶互動也良好,讓我覺得可以放心交給他沒問題,只可惜因為檔期問題,實在是太難約了。
第四組設計師:是一對年輕夫妻,對談過程都很舒服,紀錄也很詳細,需求都會幫忙列出來,可是第三次討論時,老闆跑來有點強迫盡快簽約,讓人有點不舒服,就想說緩一下就沒後續了。
第五組設計師:是朋友介紹的,似乎是大學時期的前輩,第一次來丈量就給我留下很好的印象,去現場討論時連3D圖都弄好了,讓第一次裝潢的我,快速瞭解空間是如何規劃的,風格也非常符合自己本身所喜歡的,心中就決定要讓此設計師幫我完成夢想中的設計。Darren補充,3D圖應該是設計師剛好有空,才先弄的,並提醒不確定是否每一位都會這樣做。
【設計需求】
開放式書房、書架、收納櫃、臥榻、酒櫃、飾品盒(放手錶的)
他指出,其實沒有太多需求,因為目前還未婚也不確定會需要哪些需求,最重要就是想要有一個漂亮的家,剩餘就交給設計師處理了。
開放式書房、書架、收納櫃、臥榻、酒櫃、飾品盒(放手錶的)
他指出,其實沒有太多需求,因為目前還未婚也不確定會需要哪些需求,最重要就是想要有一個漂亮的家,剩餘就交給設計師處理了。
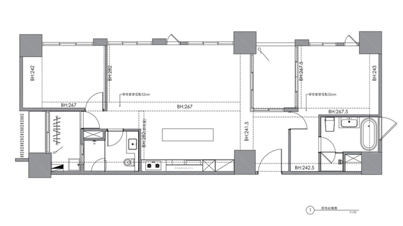
【設計圖】
▼(圖/Darren提供)

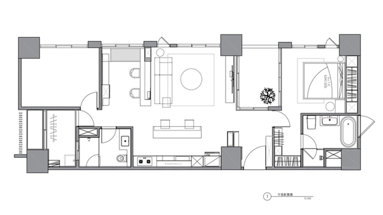
【3D圖】
Darren接著透露,每次的討論都是用3D直接邊討論邊改,不然對於裝潢新手的他來說,根本聽不懂設計師在幹嘛。
往玄關走去3D圖。(圖/Darren提供)

【渲染圖】
往玄關走去渲染3D圖。(圖/Darren提供)

【施工過程】
他也指出施工過程中,設計師每一期都會出一個簡報,讓我瞭解目前進度,也很常用通訊軟體傳進度照片給我。
施工前照片分享。(圖/Darren提供)

施工前照片分享保護、木工、拆除。(圖/Darren提供)

Darren指出,因為設計師是自己出來開業,剛好有認識的朋友在做木工,順勢就讓他們配合看看,但其時內心還是有點害怕,畢竟不是資深老師傅,年紀又比我小,但成果呈現的還不賴。
工地都保持得很乾淨,設計師說他都會嚴格要求工班下班打掃!(圖/Darren提供)

油漆、塗料。(圖/Darren提供)

收尾、木地板。(圖/Darren提供)

Darren提及,其實一開始因為很喜歡建商原本的地板,但因為實在是太黃了,於是臨時決定重鋪木地板,後來選定後就決定直接鋪蓋上去。
【完工】
附上完工美照,附上攝影師照騙、渲染圖、3D圖比對。(圖/Darren提供)

最後Darren分享第一次裝潢的心得表示,很榮幸遇到好的設計師,對於新手不懂裝潢的來說,過程中非常細心解說,也因為預算有限,會幫忙比價,現在每天早上起床,只要看到客廳的景色,就覺得心情很好,也祝福大家都能擁有一間自己喜歡的房子。
(封面圖/Darren提供)


