好房網News記者呂詠柔/綜合報導
鑑於新竹縣在頭前溪以北無都會區原住民聚會場所,縣府將在竹北市推動「新竹縣都會區原住民文化園區」,規劃原住民文化廣場、文創貨櫃市集、特色農園、水岸廊道等原住民聚會活動場域,讓離鄉背井的都會區原住民,能夠在有歸屬的環境氛圍中休閒並傳承原住民文化,並打造成竹北西區觀光旅遊的新亮點。
原住民族行政處表示,根據2023年10月的統計資料,新竹縣原住民總人口數約為2.2萬人,其中居住平地及都會區原住民共計有9930人,而竹北、湖口的科技園區和毗鄰的新豐鄉就吸引逾3700位原住民移居工作。

為提供凝聚部落族人情感及文化傳承的場域、扶植原民青年、帶動原住民產業,縣府於2021年在竹東火車站旁成立新竹縣首座原住民產業展銷中心「WAH!幾散竹東」,吸引許多人潮來遊玩,榮獲2023觀光亮點獎,成為竹東新地標。
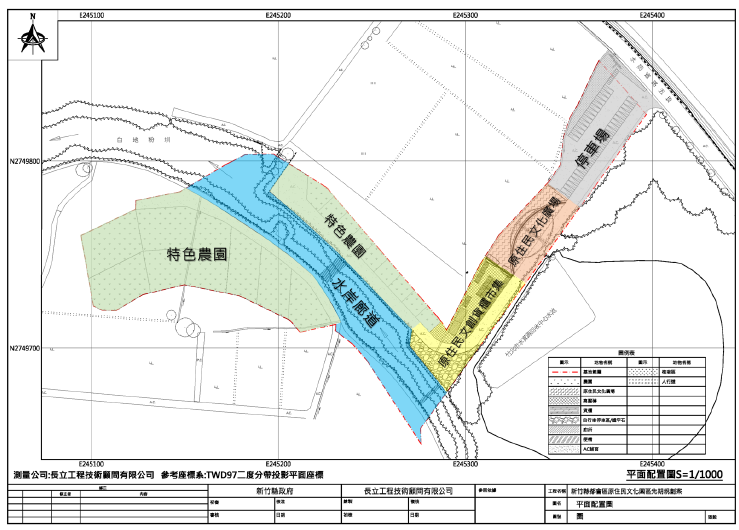
縣府2024年將推動的新竹縣都會區原住民文化園區,土地坐落於竹北市舊港段新港小段,面積約1萬6941.05平方公尺,屬於縣有的農業用地,目前正由縣府地政處進行土地變更編定審查中,待變更為特定目的事業用地後,預計向原住民族委員會爭取經費。
原民處表示,該項規劃將結合原住民的生活、生產、經濟,呈現都會原住民的特色,除了是竹北、新豐、湖口地區都市生活的原住民文化聚會場所,結合竹北新月沙灣、新豐濱海遊憩區,也可成為新竹縣海岸軸帶的新遊憩景點,帶動地方觀光繁榮。


