小學堂/打開樓層平面圖,先看「這些」地方!

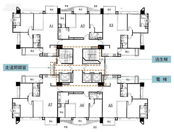
1張樓層平面圖,可以讓我們快速知道自家與周邊空間的關係,以這張平面圖來看,我們可以知道它1層有6戶、3部電梯,以及逃生梯,且公共走道間有開窗。一般來說,民眾在買房時,都會很介意梯戶比,也就是電梯數與每層樓戶數的比例,當同1樓層戶數越多,而電梯數又不夠時,一來出入較為複雜,二來等電梯時間也會很驚人。
6戶配3梯,梯戶比為1:2,算是相當舒適的配置,且公共走道間有開窗,採光、通風條件都不錯。不過,張懿欣也提醒,看梯戶比有個關鍵,得問清楚有幾台電梯可以達地下室,若是只有1台可抵地下室,在使用上也會增加不便度。
此外,一般在購屋時,注重隱私的人,也要避免選到電梯門一打開會對到自家門口的戶別,或是大門與鄰居大門太相近的戶別。而過去,民眾買房也會介意不要購買電梯旁的戶別,擔心會有噪音問題,張懿欣則說,以新建案來說,電梯運轉除了頂樓外,所發出的聲音都不大,不必太過擔心。
張懿欣特別提醒,一般不管是格局圖、平面圖,都很難看出樓高以及與鄰棟關係,舉例來說,就算平面配置很漂亮,室內格局很好,但窗戶看出去卻與鄰房距離很近,也不是太優的選擇。
她指出,雖然說這是極端的例子,但是可以藉此提醒,看圖時除了方位是很重要的判斷項目,圖面之外,與周邊環境的關係與距離,還是得做好功課,才不會踩雷。
(撰文:陳舒曼 專家諮詢:特力幸福家設計總監張懿欣 圖片:好房網資料庫)
留言 ( )