最愛大書牆!42坪生活感日系宅這樣打造

▲沿著壁面規畫的L型書牆不僅完整收納男主人的大量藏書,也讓長長走道多了一點風景。
約莫30多歲的夫妻倆選在台北士林的河堤邊安頓下來,曾經擔任日雜編輯的女主人,很喜歡日式設計對細節和機能的講究,透過幾次與設計師聊天溝通的過程中漸漸堆砌出對未來生活的想望,裏心設計的設計師施佩宜從夫妻倆大量翻閱的雜誌圖片中萃取出適量的元素,努力拼湊出這個家該有的樣貌。
「這個案子我們從預售毛胚屋的客變階段便參與,花了不少時間揣摩出屋主夫妻所想要的關於『家』的模樣。」施佩宜回憶起打造這個空間的過程這麼說。
大膽嘗試日檜橫樑效果出奇好
「我從日本當地設計案中擷取木橫樑的元素,覺得很適合在這個空間裡展演,加上男女主人都很願意接受這樣的實驗,我們便決定大膽嘗試!」打開大門,便是一個令人欣喜的開場,寬闊的玄關以水泥粉光材質鋪設,半開放式收納空間顯得清爽。取代厚實的玄關櫃,以日檜施作的窗格是玄關與廚房間的輕盈交界,往客廳的方向,橫樑又沿著樑柱和牆壁勾勒客廳的輪廓。
「日檜橫樑雖然主要是裝飾性質,但還是要有一點分量才能同時兼顧實質的支撐功能,我們花了一點時間才找到10cmx10cm這種規格的檜木。」取代榻榻米的使用,設計師換了一個方式幫屋主點亮日式風情,效果竟意外的好。

▲設計師從雜誌汲取靈感後,最後選定日式屋舍中木樑的感覺,以日檜勾勒公共空間的輪廓。
精選活動式家具營造日雜風情
通透的公共空間鋪設了溫暖的木質地板,除此之外並沒有龐大沉重的固定式櫃體,而是以活動式家具搭配出專屬屋主的氛圍,讓生活保持彈性。延續女主人喜歡的日雜風格,沙發、電視櫃、餐桌挑選的是日本ALOT Living 品牌,搭配STIMLIG胡桃木色澤長凳、LE GOUT復古藤編餐椅,深淺交錯出生活感的痕跡。
客廳的亮點,在於從客廳通往房間的長走道那片L型書牆,是為了喜愛閱讀、有大量藏書的男主人而設。「從舊家4大櫃90公分寬的書架上遷徙過來的書量驚人,我們設計了7層3.5公分厚的層板,其中輔以垂直式的藍色鐵板作為支撐隔板,除了擺書還可以將屋主平常收藏的公仔和小物穿插其中做趣味點綴。」
設計師這樣的設計讓原本平淡的走道多了風景,留下106公分的寬度,不致影響行進的動線。書牆特意保留的一方空白則選擇擺置二手活動櫃,把心愛的唱機和音響擺上,讓空間更富個性。
依據需求量身打造廚房衛浴
退掉建商原本的廚具後,為了滿足女主人夢想的機能性與收納功能,購置了日本進口的廚具品牌Cleanup,全白的設計讓整個料理空間顯得寬敞,櫥櫃與層架的交錯搭配可同時達到收納雜物與展示餐具的品味需求。
進入主臥房,日檜的設計延伸入內,簡約的白與木質交融出無印良品式的雅致風情,主牆以珪藻土材質塗抹出不規則的紋理,推開床頭的拉門,一字型的盥洗台與浴鏡讓男女主人可以依需求各據一角,水泥粉光牆面展現質樸,一旁的霧玻立櫃用來擺放平常換洗的衣物,在櫃體內部也塗上珪藻土以吸取浴室的溼氣,淋浴間齊腰的藍綠色小口磚則是給足了復古的表情。

▲寬敞的42坪空間在設計師規畫下呈現日式的生活感,從玄關、客廳到廚房都是根據男女主人的需求量身打造。
多功能琴房展現藝術個性
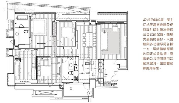
42坪的空間建商原先規畫4房2廳3衛,盤點屋主需求後做出調整,原來屋子後端配置為衛浴,考量到小家庭人口不多,因此一開始便決定撤掉衛浴設備,平常喜歡玩音樂的女主人需要一個能有隔音功能的琴房,這裡便順勢成為最適合的空間。
走進琴房裡,風格完全跳脫屋子前端所營造的日式溫暖,設計師給了這間房個性十足的森林綠牆面,用來吸音的美絲板點出粗獷的藝術氣息,其中一面牆以層架陳列喜愛的CD收藏,靠窗的一側則規畫矮櫃,並以木箱存放黑膠唱片,比起書架式的收納方式更容易翻找。
女主人指定的人字拼地板讓房內多了溫潤,無論彈著吉他或是鋼琴,每個音符都讓生活輕盈美麗。

▲主臥以清爽的木質呼應日式風情,床頭主牆以珪藻土塗抹出純手感的紋理,拉門後方便是寬敞的衛浴。

▲為了讓男女主人可同時使用,設計師規畫一字型盥洗台與浴鏡,水泥粉光牆面與齊腰的藍綠色小口磚搭配出時髦又復古的表情。

▲多功能琴房以森林綠作為主視覺,美絲板具吸音功能,不同牆面則以層板及洞洞板來迎合各式收納需求。

(撰文:Jen Jen 圖片提供:裏心設計)
留言 ( )